registered architect
a lift & build under to an post-war cottage in Camp Hill filled with places to ‘perch’: a reading nook tucked under the stair; a balcony breakfast bar with city views; a 2-way bench connecting you to the kitchen & front yard simultaneously.
a fun play with colour, texture and datums.
year: 2023-25
practice: maytree studios
builder: eclat building co.
photography: jack gibson
A continuous piece of street furniture that caters to multi-generational preferences.
The 'Logan Loop' addresses the lack of urban spaces that allow different age groups to rest, gather, and move together. By creating a space for them to co-exist, the public space becomes richer in diversity and intergenerational social interaction.
The design responds to a the flora and fauna that overtake the island and uses hardwearing materials that can gracefully accept the inevitable beachside weathering.
A series of smaller pavilions steps a new visitor through the unique landscape of Heron Island - creating a journey of exploration for the senses. The main pavilion reaches out into the surrounding landscape- opening itself to the environment and providing varying levels of connection to nature.
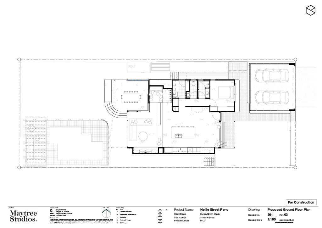
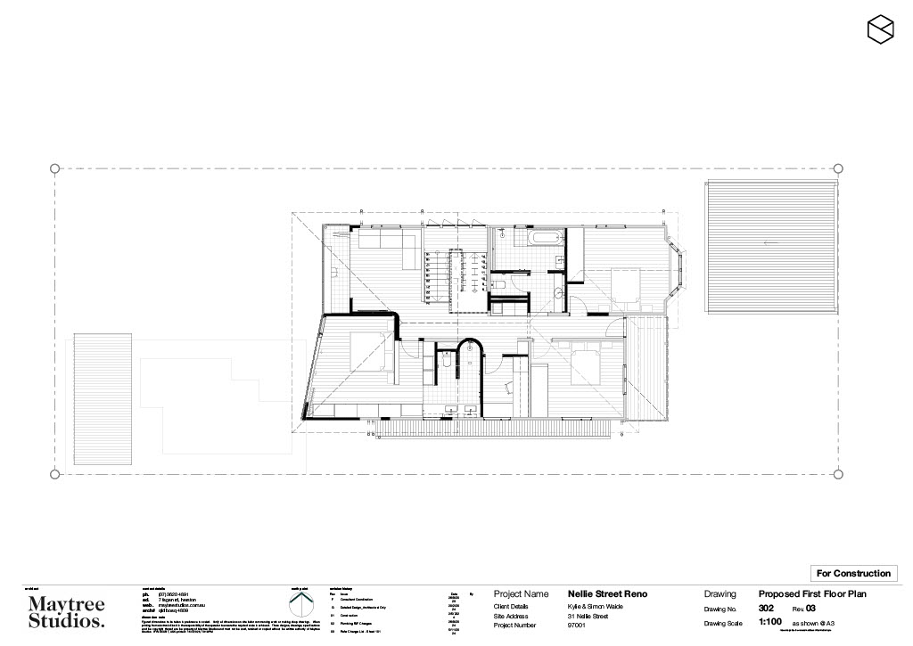
the joy in this project was the retaining of all existing external walls & structure.
the house didn’t require more internal space, it needed planning that flowed; more efficient storage; and increased connection to the landscape.
year: 2023-25
practice: maytree studios
builder: momentum building
photography: jack gibson
"Regi-frustration" Panel Event : panellist : 2025
"Forge Your Career Path" Panel Event : host & facilitator : 2024
"Entering the Profession" Panel Event : co-orgnaiser & panellist : 2023
It takes a village to recalibrate the everyday and reimagine city life.
As part of Brisbane Open House 2024, Lily and Abby ran an architectural collage workshop. The call was for Brisbanites to together & reimagine their idea of a city.
Each individual collage was stitched together to create a larger mural- creating a diverse and vibrant collective artwork.
a project that pushed the boundaries of my current portfolio with its scale, style & client requirements.
grand gestures & true craftsmanship come together to create a home that wows, while retaining the domestic scale in the places that matter.
year: 2024-26
practice: maytree studios
builder: petro builders
photography: toby scott
Using the 2032 Olympics as a trojan horse for permanent positive change to Brisbane's public space- this collaborative workshop focused on:
What began as a humble 1940s weatherboard cottage has been reconfigured into a compact bedroom wing, with a stepped contemporary extension unfolding behind to meet the needs of this growing family.
Negotiating a sloping site and angled boundary, the new volumes offset in plan. This sequencing fosters connection and enhances passive performance - maximising northern light and cross-ventilation for a home that is environmentally attuned and experientially rich.
year: 2021-24
practice: maytree studios
builder: eclat building co.
photography: toby scott
Relationships are crucial to a successful architectural project.
This was a casual mentoring event where early career architects and graduates could pick the brains of successful architects and business owners over food and drinks.
Topics included:
a modest project that provides gathering space for a couple with a large family and a love for hosting.
simple yet thoughtful interventions re-connect this pre-1911 cottage to the surrounding landscape with a central courtyard & rear deck just floating above the ground.
year: 2023-present
practice: maytree studios
builder: momentum building
photography: abigail lee
Min hedder Abby. Jeg er arkitekt fra Brisbane, Australia, bor i København.
I am passionate about design that is directly informed by people’s stories, experiences and needs.
Architecture is an incredible problem solving profession and I am delighted by its diversity and potential.
I am an practiced project lead with 5+ years experience in construction administration, construction detailing, design work and presentations, project management, and client liason.
I live a full life of friends, family, and travelling.
However, I am introverted at heart. I love boardgames and cooking and staying at home with a cup of coffee and a great book.
If you think I could be a good addition to your workplace, I would love to hear from you!
Contact me at: abigaillee239@gmail.com
Mange tak!